東大阪市布市町 新築戸建

2,580万円

大阪府東大阪市布市町1丁目

近鉄けいはんな線「新石切」駅徒歩25分

近鉄難波・奈良線「石切」駅徒歩28分

価格
2,580万円
間取り/建物面積
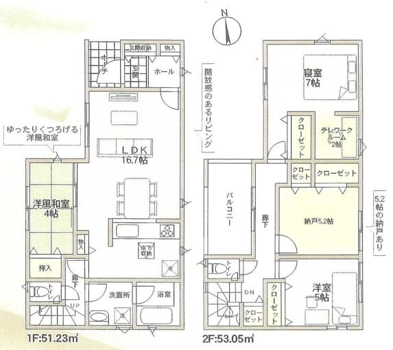
3LDK/85.86㎡
所在地
大阪府東大阪市布市町1丁目
築年
2025年8月(新築)
駐車
有(2台)
交通

近鉄けいはんな線新石切」駅 徒歩25分

近鉄難波・奈良線石切」駅 徒歩28分

東大阪市布市町 新築戸建の基本情報

物件名
東大阪市布市町 新築戸建
価格
2,580万円
建物面積
85.86㎡
土地面積
34.11坪(112.78㎡)
築年月
2025年8月(新築)
総戸数
6戸
所在地
大阪府東大阪市布市町1丁目
交通

近鉄けいはんな線新石切」駅 徒歩25分

近鉄難波・奈良線石切」駅 徒歩28分

東大阪市布市町 新築戸建の詳細情報

設備条件
  • 駐車2台可
  • 耐震構造
設備(その他)
    -
駐車場/月額
有(2台)/0円
土地権利
所有権
国土法届出
不要
用途地域
第一種住居
取引態様
仲介
引渡し
即時

東大阪市布市町 新築戸建で募集中の物件

  1. 2,3,4号棟

    25.97坪 (85.86㎡)

    2,580万円(99.35万円/坪)

周辺施設

  • mandai(万代) 石切店の画像

    スーパー

    mandai(万代) 石切店

    467m(6分)

  • ファミリーマート 東大阪布市店の画像

    コンビニエンスストア

    ファミリーマート 東大阪布市店

    530m(7分)

  • ココカラファイン 日下店の画像

    ドラッグストア

    ココカラファイン 日下店

    543m(7分)

  • 中石切公園の画像

    公園

    中石切公園

    613m(8分)

  • 関西スーパー 日下店の画像

    スーパー

    関西スーパー 日下店

    617m(8分)

  • 南くさか保育園の画像

    保育園

    南くさか保育園

    621m(8分)

  • 東大阪市役所 日下行政サービスセンターの画像

    その他

    東大阪市役所 日下行政サービスセンター

    644m(9分)

  • 孔舎衙小学校の画像

    小学校

    孔舎衙小学校

    650m(9分)

  • 日下郵便局の画像

    郵便局

    日下郵便局

    791m(10分)

  • コーナンPRO(プロ) 外環大東店の画像

    ホームセンター

    コーナンPRO(プロ) 外環大東店

    1220m(16分)

  • 孔舎衙中学校の画像

    中学校

    孔舎衙中学校

    1500m(19分)

近隣の物件

  1. 東大阪市新上小阪

    3LDK (79.78㎡)

    1,980万円

  2. 東大阪市若江南町2丁目

    3LDK (79.47㎡)

    1,599万円

  3. 東大阪市御厨南2丁目

    3LDK (113.01㎡)

    5,199万円

  4. 東大阪市東石切町6丁目

    4DK (97.70㎡)

    1,680万円

東大阪市布市町 新築戸建

お気軽にお問い合わせください

無料お問い合わせ

株式会社 GLOBAL HOME

06-6787-9686

9:00~18:00

(休:土日祝日完全予約制)