東大阪市布市町 新築戸建 2,3,4号棟

11月21日 値下げ

2,450万円

大阪府東大阪市布市町1丁目

近鉄けいはんな線「新石切」駅徒歩25分

近鉄難波・奈良線「石切」駅徒歩28分

価格
2,450万円
間取り
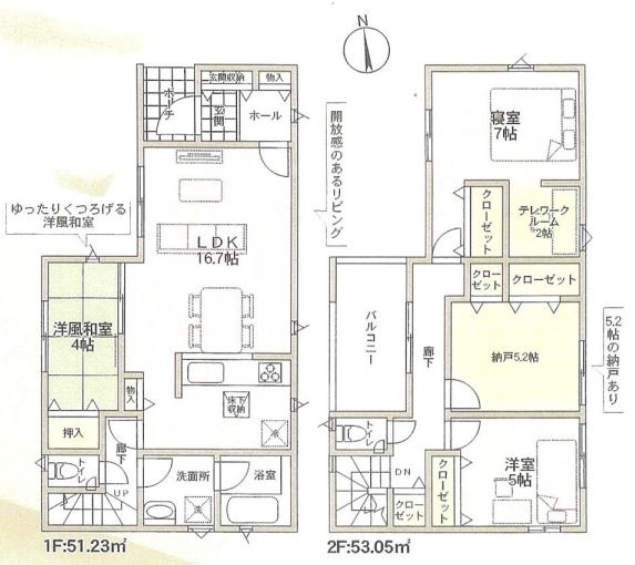
3LDK
土地面積
112.78㎡
所在地
大阪府東大阪市布市町1丁目
交通

近鉄けいはんな線新石切」駅 徒歩25分

近鉄難波・奈良線石切」駅 徒歩28分

建物面積
85.86㎡
築年月
2025年8月(新築)

物件の特徴

  • 室内洗濯機置場

  • TVモニタ付きインターホン

  • カウンターキッチン

  • 浴室乾燥機

セールスポイント

【安心の耐震等級3住宅】南向きバルコニー!坂のない平坦地で暮らしやすい環境。小学校・公園が近く、スーパー・市役所も徒歩圏!フラット35S対応。暮らしやすさと安心を備えた全6区画の新築住宅。

担当者のコメント

藤原 純子

はじめまして、グローバルホームの藤原と申します。お住まい探しでこだわりやご要望などあれば、当社にお任せ下さい。ご納得いただける物件が見つかるまでご提案させていただきます。住宅ローンのご相談もお任せください。

基本情報

販売戸数
3戸
総戸数
6戸
間取り / 詳細
3LDK
LDK 18.7帖/洋室 4.5帖/洋室 6.0帖/洋室 7.5帖
LDKに3帖の畳コーナーがあります!
向き
-
建物面積(坪数)
85.86㎡(25.97坪)
土地面積(坪数)
112.78㎡(34.11坪)
建ぺい率 /
容積率
60%/160%
築年月
2025年8月(新築)
駐車場 /
月額料金
有(2台) 0円
土地権利
所有権
土地
(敷金 / 保証金)
- / -
建物構造
木造 / 2階建
傾斜地部分面積
-
路地状敷地
-
私道負担面積
0.90㎡
セットバック
高圧線下面積
-
施工会社
(株)アーネストワン
用途地域
第一種住居
地目 / 地勢
宅地 / 平坦
接道状況
一方(北 公道 3.4m 間口 3.6m)
国土法届出要否
不要
都市計画
市街化区域
総区画数 /
販売区画数
6区画/3区画
現況
完成済み
その他
法令上の制限
-
取引態様
仲介
引渡し
即時
取引条件の
有効期限
2025年12月22日

設備条件

設備条件
  • ペット相談 / 室内洗濯機置場 / フローリング / バルコニー / 都市ガス / 公営水道 / 公共下水 / 電気有 / 駐車2台可 / 耐震構造 / ガスコンロ / コンロ2口以上 / システムキッチン / カウンターキッチン / コンロ3口 / 追焚機能浴室 / 浴室乾燥機 / 温水洗浄便座 / 洗髪洗面化粧台 / 床下収納 / TVモニタ付インターホン
設備(その他)
    -

その他

物件番号
98835885
管理コード
-
建築確認番号
-
情報更新日
2025年12月08日
次回更新予定日
2025年12月22日
取扱会社
  • 株式会社 GLOBAL HOME
  • 大阪府東大阪市高井田元町2丁目31−19 
  • TEL:06-6787-9686
  • 大阪府知事 (1) 第062163号
  • 不動産保証協会会員
    全日本不動産保証協会会員
    全国不動産協会会員
備考
弊社でご成約いただいたお客様に限り『ミラブル・シャワーヘッド』プレゼント!!無料で取付もいたします!!

周辺施設

  • mandai(万代) 石切店の画像

    スーパー

    mandai(万代) 石切店

    467m(6分)

  • ファミリーマート 東大阪布市店の画像

    コンビニエンスストア

    ファミリーマート 東大阪布市店

    530m(7分)

  • ココカラファイン 日下店の画像

    ドラッグストア

    ココカラファイン 日下店

    543m(7分)

  • 中石切公園の画像

    公園

    中石切公園

    613m(8分)

  • 関西スーパー 日下店の画像

    スーパー

    関西スーパー 日下店

    617m(8分)

  • 南くさか保育園の画像

    保育園

    南くさか保育園

    621m(8分)

  • 東大阪市役所 日下行政サービスセンターの画像

    その他

    東大阪市役所 日下行政サービスセンター

    644m(9分)

  • 孔舎衙小学校の画像

    小学校

    孔舎衙小学校

    650m(9分)

  • 日下郵便局の画像

    郵便局

    日下郵便局

    791m(10分)

  • コーナンPRO(プロ) 外環大東店の画像

    ホームセンター

    コーナンPRO(プロ) 外環大東店

    1220m(16分)

  • 孔舎衙中学校の画像

    中学校

    孔舎衙中学校

    1500m(19分)

支払いシミュレーション

月々の支払額
9.6
購入希望物件価格
万円
頭金
万円
金利
%
返済額(ボーナス1回分)
万円
返済期間

※ボーナスは自動で年2回分で計算されます。

近隣の物件

  1. 東大阪市菱江6丁目 中古戸建

    東大阪市菱江6丁目

    5LDK (109.78㎡)

    1,380万円

  2. 東大阪市楠根 中古戸建

    東大阪市楠根3丁目

    4LDK (83.70㎡)

    2,999万円

  3. 東大阪市御厨東1丁目 中古戸建

    東大阪市御厨東1丁目

    3LDK (84.24㎡)

    2,999万円

  4. 東大阪市大蓮東 中古戸建

    東大阪市大蓮東1丁目

    4SLDK (97.98㎡)

    1,980万円

東大阪市布市町 新築戸建

東大阪市布市町 新築戸建

2,450万円

-

3LDK(85.86㎡)

お気軽にお問い合わせください

無料お問い合わせ

株式会社 GLOBAL HOME

06-6787-9686

9:00~18:00

(休:土日祝日完全予約制)