東大阪市池島町 新築分譲住宅 3号棟

12月12日 値下げ

2,980万円

大阪府東大阪市池島町2丁目5-7

近鉄難波・奈良線「瓢箪山」駅徒歩20分

近鉄難波・奈良線「東花園」駅徒歩22分

価格
2,980万円
間取り
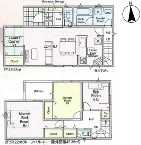
3LDK
土地面積
134.05㎡
所在地
大阪府東大阪市池島町2丁目5-7
交通

近鉄難波・奈良線瓢箪山」駅 徒歩20分

近鉄難波・奈良線東花園」駅 徒歩22分

建物面積
92.34㎡
築年月
2025年10月(新築)

物件の特徴

  • 室内洗濯機置場

  • TVモニタ付きインターホン

  • カウンターキッチン

  • 浴室乾燥機

セールスポイント

近鉄難波・奈良線『瓢箪山』駅徒歩20分!子育てしやすい明るいリビングは16帖!徒歩10分圏内に学校・スーパー等生活施設充実!

担当者のコメント

藤原 純子

はじめまして、グローバルホームの藤原と申します。お住まい探しでこだわりやご要望などあれば、当社にお任せ下さい。ご納得いただける物件が見つかるまでご提案させていただきます。住宅ローンのご相談もお任せください。

基本情報

販売戸数
-
総戸数
-
間取り / 詳細
3LDK
2SLDK+畳コーナー
向き
北西
建物面積(坪数)
92.34㎡(27.93坪)
土地面積(坪数)
134.05㎡(40.54坪)
建ぺい率 /
容積率
60%/160%
築年月
2025年10月(新築)
駐車場 /
月額料金
有 0円
土地権利
所有権
土地
(敷金 / 保証金)
- / -
建物構造
木造 / 2階建
傾斜地部分面積
-
路地状敷地
-
私道負担面積
2.19㎡
セットバック
済 2.19㎡
高圧線下面積
-
施工会社
-
用途地域
第一種中高層住居専用
地目 / 地勢
宅地 / 平坦
接道状況
一方(北 公道 2.9m 間口 2.0m)
国土法届出要否
不要
都市計画
市街化区域
総区画数 /
販売区画数
-/-
現況
完成済み
その他
法令上の制限
準防火地域
取引態様
仲介
引渡し
即時
取引条件の
有効期限
2026年02月27日

設備条件

設備条件
  • 室内洗濯機置場 / フローリング / バルコニー / 都市ガス / 公営水道 / 公共下水 / 電気有 / ガスコンロ / コンロ2口以上 / システムキッチン / カウンターキッチン / コンロ3口 / 追焚機能浴室 / 浴室乾燥機 / 温水洗浄便座 / 洗髪洗面化粧台 / TVモニタ付インターホン
設備(その他)
    -

その他

物件番号
99225446
管理コード
-
建築確認番号
-
情報更新日
2026年02月13日
次回更新予定日
2026年02月27日
取扱会社
  • 株式会社 GLOBAL HOME
  • 大阪府東大阪市高井田元町2丁目31−19 
  • TEL:06-6787-9686
  • 大阪府知事 (1) 第062163号
  • 不動産保証協会会員
    全日本不動産保証協会会員
    全国不動産協会会員
備考
弊社でご成約いただいたお客様に限り『ミラブル・シャワーヘッド』プレゼント!!無料で取付もいたします!!

周辺施設

  • 池島学園小学部の画像

    小学校

    池島学園小学部

    194m(3分)

  • セブンイレブン 東大阪六万寺店の画像

    コンビニエンスストア

    セブンイレブン 東大阪六万寺店

    367m(5分)

  • 池島学園中学部の画像

    中学校

    池島学園中学部

    370m(5分)

  • 東大阪池島郵便局の画像

    郵便局

    東大阪池島郵便局

    670m(9分)

  • mandai(万代) 六万寺店の画像

    スーパー

    mandai(万代) 六万寺店

    674m(9分)

  • サンドラッグ 六万寺店の画像

    ドラッグストア

    サンドラッグ 六万寺店

    720m(9分)

  • 認定こども園四季の風幼稚舎の画像

    幼稚園

    認定こども園四季の風幼稚舎

    740m(10分)

  • ライフ玉串店の画像

    スーパー

    ライフ玉串店

    1094m(14分)

支払いシミュレーション

月々の支払額
9.6
購入希望物件価格
万円
頭金
万円
金利
%
返済額(ボーナス1回分)
万円
返済期間

※ボーナスは自動で年2回分で計算されます。

近隣の物件

  1. 東大阪市六万寺町 中古戸建

    東大阪市六万寺町1丁目

    4LDK (116.23㎡)

    2,280万円

  2. 大阪府東大阪市出雲井本町

    東大阪市出雲井本町

    4LDK (99.42㎡)

    3,280万円

  3. 東大阪市稲葉1丁目 中古戸建

    東大阪市稲葉1丁目

    2LDK (56.57㎡)

    1,430万円

  4. 東大阪市花園東町 中古戸建

    東大阪市花園東町1丁目

    4LDK (89.19㎡)

    3,180万円

東大阪市池島町 新築分譲住宅

東大阪市池島町 新築分譲住宅

2,980万円

-

3LDK(92.34㎡)

お気軽にお問い合わせください

無料お問い合わせ

株式会社 GLOBAL HOME

06-6787-9686

9:00~18:00

(休:土日祝日完全予約制)